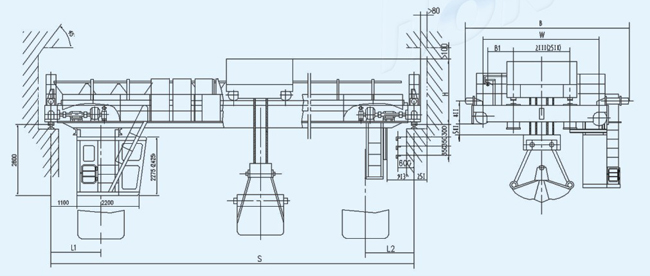
QZ型抓斗橋式起重機廣泛適用于貨場、碼頭等,進行散貨物料的運輸。QZ型抓斗橋式起重機,主要有橋架、大車運行機構、小車、抓斗和電氣設備等組成,其工作級別為A6,環(huán)境工作溫度為-20℃-40℃ ,其起重量包括抓斗重量。本產品為四級室操縱。

起重 | t | 5 | 10 | |||||||||||||||||||||||||||||||||||||||
跨度 | m | 10.5 | 13.5 | 16.5 | 19.5 | 22.5 | 25.5 | 28.5 | 31.5 | 10.5 | 13.5 | 16.5 | 19.5 | 22.5 | 25.5 | 28.5 | 31.5 | |||||||||||||||||||||||||
起升高度 | m | 20 | ||||||||||||||||||||||||||||||||||||||||
工作級別 | A6 | |||||||||||||||||||||||||||||||||||||||||
速度 | 起升.開閉 | m/min | 37.4 | 40.3 | ||||||||||||||||||||||||||||||||||||||
小車運行 | 44.3 | 45.4 | ||||||||||||||||||||||||||||||||||||||||
起重機運行 | 93 | 94 | 87 | |||||||||||||||||||||||||||||||||||||||
電動機 | 起升、開閉 | 型號/功率 | YZR250M1-8/2×22kw | YZR280M-10/2×45kw | ||||||||||||||||||||||||||||||||||||||
小車運行 | YZR132M1-6/2.2kw | YZR132M2-6/3.7kw | ||||||||||||||||||||||||||||||||||||||||
起重機運行 | YZR160M1-6/2×5.5kw | YZR160M2-6/2×7.5kw | YZR160M2-6/2×7.5kw | |||||||||||||||||||||||||||||||||||||||
主要尺寸(mm) | W | 4100 | 4600 | 4200 | 4600 | |||||||||||||||||||||||||||||||||||||
B | 5910 | 6410 | 6010 | 6410 | ||||||||||||||||||||||||||||||||||||||
H | 1753 | 1756 | 1759 | 1764 | 1767 | 1770 | 1773 | 1776 | 2058 | 2061 | 2064 | 2067 | 2070 | 2073 | 2076 | 2079 | ||||||||||||||||||||||||||
C1 | 1617(有防雨罩Ⅰ型)1587(無防雨罩Ⅰ型)2077(Ⅱ型) | 1990(有防雨罩Ⅰ型)1860(無防雨罩Ⅰ型)2490(Ⅱ型) | ||||||||||||||||||||||||||||||||||||||||
C2 | 1764(Ⅰ型)2077(Ⅱ型) | 1830(有防雨罩Ⅰ型)1730(無防雨罩Ⅰ型)2490(Ⅱ型) | ||||||||||||||||||||||||||||||||||||||||
輪壓 | kN | 83 | 489 | 95 | 100 | 109 | 124 | 126 | 136 | 120 | 128 | 137 | 144 | 151 | 160 | 169 | 170 | |||||||||||||||||||||||||
配用抓斗類型 |
| |||||||||||||||||||||||||||||||||||||||||
抓斗容量 | m3 | |||||||||||||||||||||||||||||||||||||||||
抓斗容量 | t/m3 | |||||||||||||||||||||||||||||||||||||||||
抓斗自重 | kg | |||||||||||||||||||||||||||||||||||||||||
適用大車鋼軌 | 38kg/m、43kg/m、50kg/m、QU70、QU80、QU100 | |||||||||||||||||||||||||||||||||||||||||
電源 | 三相交流380v 50Hz | |||||||||||||||||||||||||||||||||||||||||